Lisboa, Lisboa, Estrela, Arredores (Lapa)
Junto á Tapa das Necessidades, a cinco minutos do Jardim e Basílica da Estrela , a cinco minutos da nova CUF Tejo, a oito minutos do centro comercial Amoreiras e da Ponte 25 de Abril.
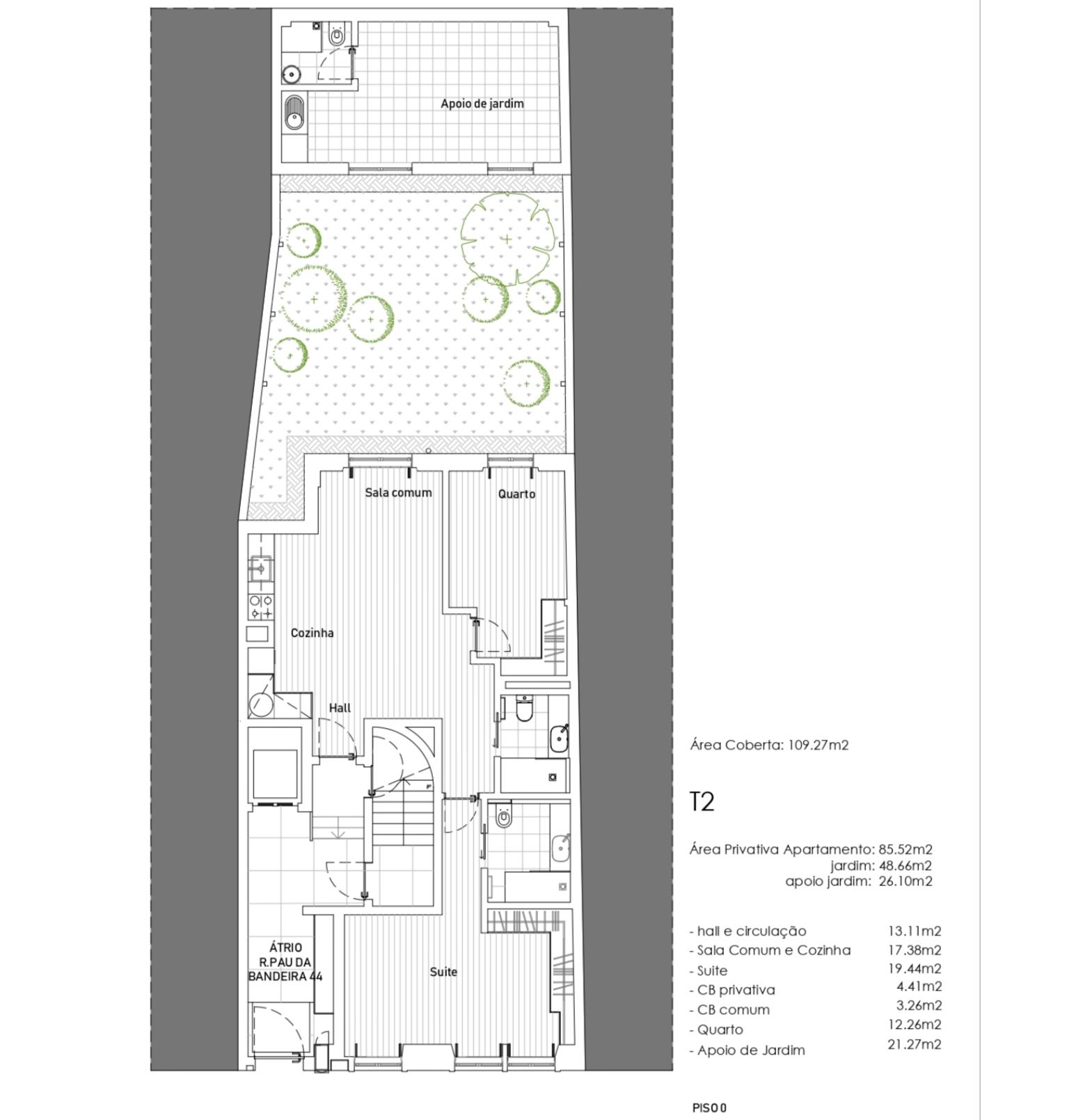
É aqui no centro da Lapa que se encontra este fantástico T2 em Prédio de típico Azulejo Português NOVO A ESTREAR com suite e cozinha equipada + Anexo com WC e kitchenette separados por um fantástico Jardim privativo no centro da cidade de Lisboa.
Não perca tempo e marque já a sua visita o quanto antes.
Sempre ao seu dispor
Mais consultores Imobiliária